01垃圾运输车行驶道路区域:垃圾运输车行驶过程中会有少量泔水滴洒在所经过的道路区域,泔水会缓慢释放恶臭气体至空气中,飘散到整个厂界甚至厂外,此类区域包括厂区道路、装卸料区域(包括卸料区和轻重物质间);
02餐厨垃圾处理车间区域:餐厨垃圾在处理过程中,产生的臭气扩散,导致处理区域恶臭气体浓度较高;
03其他区域,如发酵罐区域、泵房等等区域或多或少都会有少量恶臭气体扩散。
餐厨垃圾及其泔水当前的表观问题是空气有毒有害气体、VOC气体、恶臭气体的污染,要治理的关键问题是消除恶臭和降解有毒有害气体、VOC气体,治理的关键困难是污染气体难以有组织收集,废气源24小时不间断持续挥发积累, 通过微生物代谢技术,直接代谢降解空气污染,确保空气质量达到无组织排放的标准,从而实现对空气污染可持续的治理,是本工程的整体设计思路。为实现对空气污染的持续治理,首先必须控制污染源,因此本项目需在污染源头设计饱和雾化治污解毒除臭系统进行处理,大幅降低废气分子进入空气的污染总量。基于餐厨垃圾处理项目的实际运行情况,和污染气体扩散积累的特点,建立高效的治理体系,提高空气污染的治理效率和效果。
高压雾化除臭系统对空气中污染物进行高效的降解,大量减少污染源废气进入空气中,在确保废气污染上进行源头控制。系统主要是由智能雾化泵房及管线喷头构成,通过在污染源周边布上雾化喷头,通过智能泵站按时定量的提供治污解毒除臭剂,通过管道及喷头,对污染源进行持续的定时定量的饱和雾化除臭。
智能雾化除臭系统智能化工作,自动将微生物制剂与净化后的自来水按预设比例均匀混合,由高压柱塞泵将混合液加压至5-7MPa(50-70Kg/cm2),再通过高压水管传送至喷嘴,经喷嘴雾化后以5-15μm的粒径喷洒。含有微生物制剂的水雾与恶臭气体接触后快速将恶臭气体分解成CO2、水、盐类化合物,从而实现对恶臭气体的净化治理。
智能雾化除臭系统还具有对工作压力、环境温度、喷雾流量、臭气浓度等参数的自动监测、记录、反馈、控制功能,系统允许长期无人值守工作。
卸料区、轻重物质间、预处理车间、油水分离车间等4个区域空气治理,共需要约116个雾化喷头,4个区域工作时间不同,基于以下因素,建议采用1套DZJCZ-18智能饱和雾化治污解毒除臭系统。
卸料区为两个相对封闭的区域,区域尺寸约为5×10米,面积约50平米, 在区域两侧和接收斗前方布设管线和雾化喷头,卸料区图纸示意如图所示。
喷头设置,每1.5米设置1个雾化喷头,每个卸料区设置约17个,两个卸料区共需要34个雾化喷头(根据实际情况可能数量会有变化)。
轻重物质间为长方形区域,区域尺寸约为4×9米,面积约36平米,在区域内测和轻重物质间前方布设管线和雾化喷头,卸料区图纸示意如图。
喷头设置,每1.5米设置1个雾化喷头,整个区域设置约14个雾化喷头(根据实际情况可能数量会有变化)。
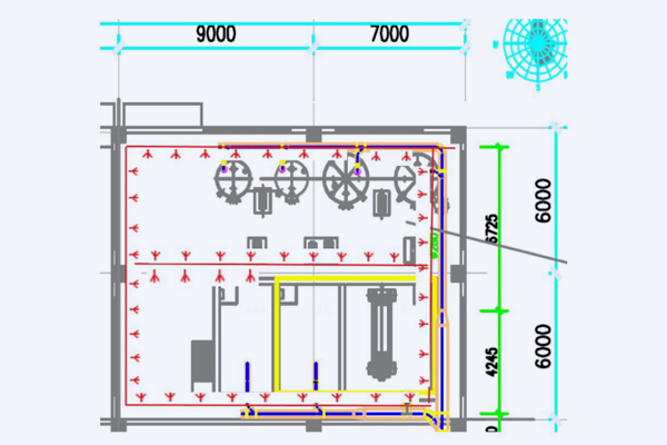
预处理车间,为长方形区域,区域尺寸约为10×12米,面积约120平米, 在区域中间均匀布设2条管线和双向雾化喷头,预处理车间图纸示意如图。
喷头设置,每2米设置1对雾化喷头,整个区域设置12对共24个雾化喷头(根据实际情况可能数量会有变化)。
油水分离车间为长方形区域,区域尺寸约为12×16米,面积约192平米,在区域四周和中间布设管线和雾化喷头,油水分离车间图纸示意如图。
喷头设置,墙壁四周每2米设置1个单向雾化喷头,需要28个雾化喷头; 中心拉一条管线,每2米设置1对双向雾化喷头,需要8对16个喷头。整个区域共44个雾化喷头(根据实际情况可能数量会有变化)。
◆《关于实行城市生活垃圾处理收费制度促进垃圾处理产业化的通知》
◆《中华人民共和国环境保护法》
◆《城市生活垃圾处理及污染防治技术政策》(建成[2000]120号)
◆《建设项目环境保护设计规定》[(87)国环字第002号文]
◆《建设项目(工程)劳动安全卫生监察规定》
◆《城市环境卫生专用设备》(CJ/T29-91)
◆《恶臭污染物排放标准》(GB1455-93)
◆《城市垃圾产生源分类及垃圾排放标准》(CJ/T3033-1996)
◆《城市生活垃圾采样和物理分析方法》(CJ/T3039-1995)
◆《生活垃圾除臭剂技术要求》(CJ-T 516-2017)
◆《国家计委、建设部、国家环保总局关于推进城市污水、垃圾处理产业化发展的意见》
动力线、信号线将按照有关《低压配电装置及线路设计规范》(GB50054-92)和现场实际情况,进行敷设安装施工。
(1)电气设备和系统符合中国国家标准和规范、国际电工技术委员会标准(IEC);
(2)控制装置适合业主提供电源:380V±10%,50Hz±3%;
(3)配套的各台电机满足拖动设备的负载特性;
(4)电动机采用质优品牌的电机,其绝缘等级为 F 级。防护等级不低于户外IP65,户内 IP54;
(5)主体设备配有成套电气传动设备、仪器仪表、检测元件、电控设备以及相应的电力、控制、信号电缆;
(6)所有仪表的测量性能(精度、灵敏度、量程等)可满足工艺测量和控制的要求;
(7)系统设计自动化程度高,安全性好,操作方便的特点。
(8)实现对所有设备和控制,系统设备保证达到无人在场条件下能全自动运行和控制。

